top of page
Create Your First Project
Start adding your projects to your portfolio. Click on "Manage Projects" to get started
Aquavista Work
Location
Cordoba Argentina
Date
2021
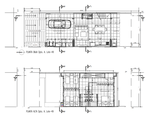
Project of 6 Duplexes of 120m² each, configured in pairs together generating a unified volume, located in Aquavista Córdoba Argentina, with parking and barbecue area at the entrance and living room, kitchen-dining room, integrated with the entire ground floor with the backyard and the front grill generating a continuous space. Upper floor with 3 bedrooms and two bathrooms.




















































bottom of page


